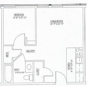
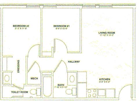
River Market Apartments & Shoppes - A 2x1.5 Classic Floor Plan
221 E. State Street, West Lafayette IN 47906
2
bdrm
1
bath
$519
rent
(indv lease)
648
sq ft
save this listing
save
ListingID: 13514
Property: Apartment Building
Last Updated: 8/19/2020
+ contact settings
Property Features
Accepts Credit Cards
Fitness Center
On-Site Laundry
Controlled Access
Individual Leases
Parking Lot
Elevator
Online Rent Payment
Tanning Bed
This Unit's Features
A/C - Central
Dishwasher
Microwave
A/C - Room
Garbage Disposal
Office
Cable Included
Internet Included
Refrigerator
Typical Utilities
Gas:
included!
Water:
included!
Garbage:
included!
Pet Policy
Dogs - Restricted Breeds
Dogs - Any Breed
Cats
Rabbits
Birds
Fish
Caged Animals
Social Policies
Smoking

Purdue's most unique apartment community! River Market Apartments & Shoppes offers Studios, 1, 2 bedroom and the ONLY spacious lofts in West Lafayette. Brand new to River Market is the state-of-the-art credit card operated laundry facilities, newly equipped fitness center and controlled security access! At River Market you are just steps away from Purdue University, Chauncey Hill, Wabash Landing and Downtown Lafayette. We even have our own retail shoppes and restaurants on the ground level. Check us out at www.rivermarketapts.com or contact the leasing office for more information at 765-743-9207. River Market Apartments & Shoppes - "Your One Stop Apartment Shop and "Your Home Away from Home."

LIVE.EAT.SHOP.

Take $100 off your security deposit and another $50 off your first month of rent when you "Look and Lease!" Hurry in to take a tour today! Offer ends soon.

Lease Options
Individual Leases
Roommate Pairing
1 year leases
Lease Terms
12 Month
Additional Fees
DescriptionAdditional Amount
application
$50 (one-time fee)
SECURITY DEPOSIT
$200 (refundable deposit)
Rent
$549 per month
Administrative
$150 (one-time fee)
floor plan image floor plan image floor plan image floor plan image floor plan image floor plan image floor plan image floor plan image floor plan image floor plan image floor plan image floor plan image floor plan image floor plan image floor plan image floor plan image floor plan image floor plan image floor plan image
Quick Feedback
What can we do better?
send feedback
don't show this
click here to close this message